Fuente Álamo. Costa Cálida (MURCIE) Villa. Nouvelle construction

REF: NB-26027
320.000€
REF: NB-26027
320.000€

Fuente Álamo. Costa Cálida (MURCIE) Villa. Nouvelle construction

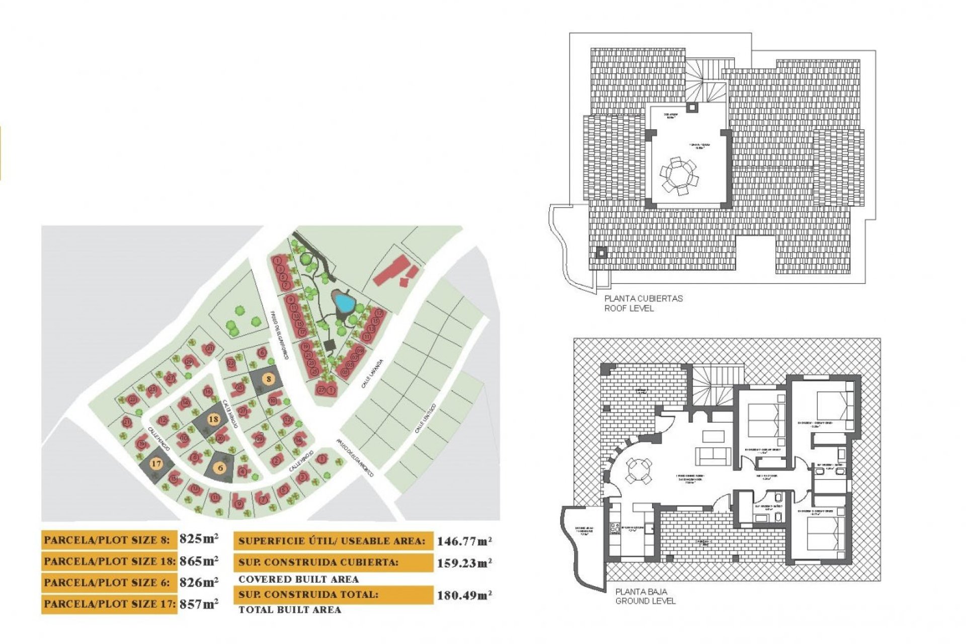
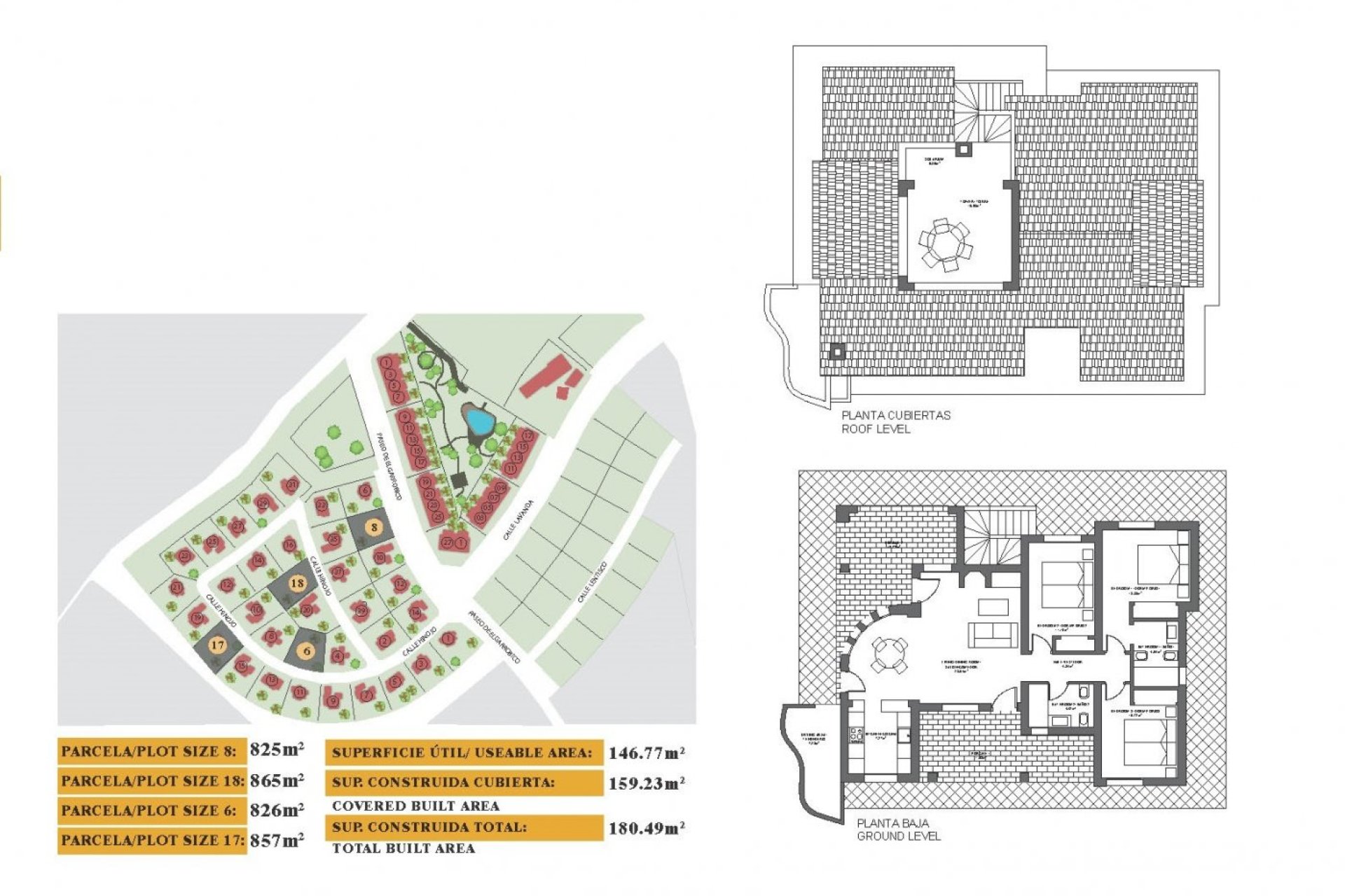
  • Terrain 850m2
  • Chambres 3
  • Nbr. Sdb 2

Caractéristiques

VILLA CLÉ EN MAIN À FUENTE ALAMO, MURCIA Fuente Álamo. Costa Cálida (MURCIE)

Emplacement

Responsable du traitement: AJ Spain R.Estate & Promociones SL, Finalité du traitement: Gestion et contrôle des services proposés sur le site Web des Services immobiliers, Envoi d'informations via newsletter et autres, Base légale: Par consentement, Destinataires: Les données ne seront pas partagées, sauf à des fins comptables, Droits des personnes concernées: Accéder, rectifier et supprimer les données, demander leur portabilité, s’opposer au traitement et en demander la limitation, Source des données: La personne concernée, Informations supplémentaires: Vous pouvez consulter les informations supplémentaires et détaillées sur la protection des données Ici.
WhatsApp Discutez avec nous