Appartements neufs à Torrevieja, à seulement 600 mètres de la plage Playa del Cura
Emplacement privilégié au cœur de Torrevieja
Découvrez ces appartements et penthouses neufs dans l'un des quartiers les plus prisés de Torrevieja, à seulement 600 mètres de la plage Playa del Cura et à 400 mètres de la promenade en bord de mer. Situé dans le centre-ville, ce quartier animé offre toutes les commodités essentielles à quelques minutes à pied, notamment des supermarchés, des magasins, des restaurants, des cafés et les transports en commun. Torrevieja est une ville côtière réputée de la Costa Blanca, célèbre pour son climat méditerranéen doux, son atmosphère animée et son mode de vie balnéaire tout au long de l'année.
Appartements modernes avec des agencements spacieux
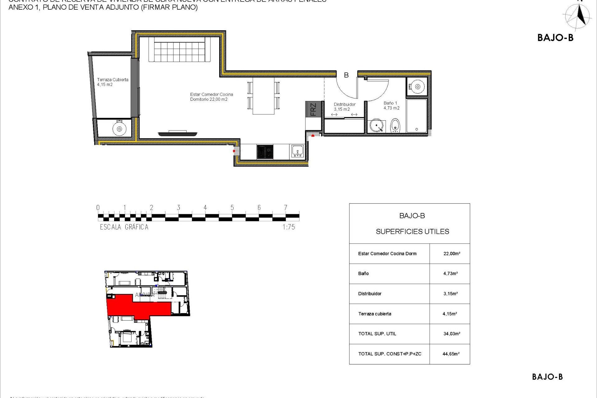
Ce nouveau développement exclusif se compose de seulement 14 appartements et penthouses, comprenant des studios et des propriétés de 1 ou 2 chambres, conçus pour offrir confort, fonctionnalité et style contemporain. Toutes les maisons disposent d'une cuisine ouverte reliée au salon-salle à manger, équipée d'appareils électroménagers, créant des intérieurs lumineux et accueillants. Les chambres sont équipées d'armoires encastrées et les salles de bains sont entièrement équipées avec des meubles, des miroirs, le chauffage au sol et des parois de douche.
Finitions de qualité et caractéristiques écoénergétiques
Les appartements sont construits avec des matériaux de haute qualité et accordent une grande importance à l'efficacité énergétique. Les menuiseries extérieures en aluminium sont dotées d'une technologie à rupture thermique et d'un double vitrage pour l'isolation thermique et acoustique. Les stores motorisés ajoutent confort et sécurité. Chaque logement est pré-équipé pour la climatisation et le chauffage central, dispose de portes d'entrée renforcées, d'un pack d'éclairage et de portes intérieures laquées blanches. L'eau chaude est produite par un système aérothermique, ce qui réduit la consommation d'énergie et améliore la durabilité.
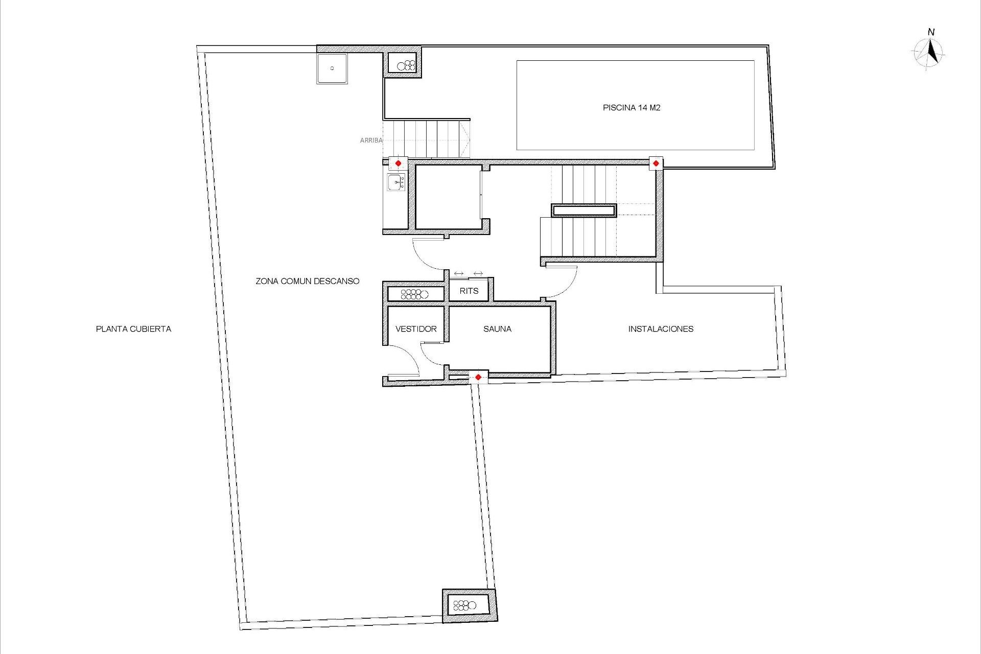
Solarium sur le toit avec piscine commune
Les résidents peuvent profiter d'un solarium exclusif sur le toit avec piscine commune, barbecue, sauna et espace de bronzage avec chaises longues, accessible par ascenseur ou par les escaliers. Cet espace privé est idéal pour se détendre, prendre un bain de soleil et profiter d'une vue panoramique sur la ville. Il offre un havre de paix au-dessus des rues animées de Torrevieja et ajoute une valeur significative au projet.
Mode de vie et environnement de Torrevieja
Torrevieja est connue pour son long littoral, ses plages de sable et ses marais salants emblématiques. Le parc naturel Lagunas de La Mata y Torrevieja se trouve à environ 5 km et offre des sentiers de randonnée et des paysages uniques. Plusieurs terrains de golf, tels que Villamartin Golf et Las Colinas Golf, se trouvent entre 12 et 18 km. La marina et le port de Torrevieja sont à environ 1 km. L'aéroport d'Alicante est à environ 45 km et l'aéroport international de Murcie à environ 65 km, tous deux offrant d'excellentes liaisons européennes.
Votre maison sur la côte vous attend
Ne manquez pas cette occasion d'acheter un appartement moderne et neuf près de la plage à Torrevieja. Contactez-nous dès aujourd'hui pour obtenir plus d'informations ou pour organiser une visite privée.
980