Orihuela Costa. Costa Blanca South Apartment . New Build

REF: NB-38919
469.000€
REF: NB-38919
469.000€

Orihuela Costa. Costa Blanca South Apartment . New Build

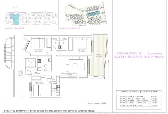
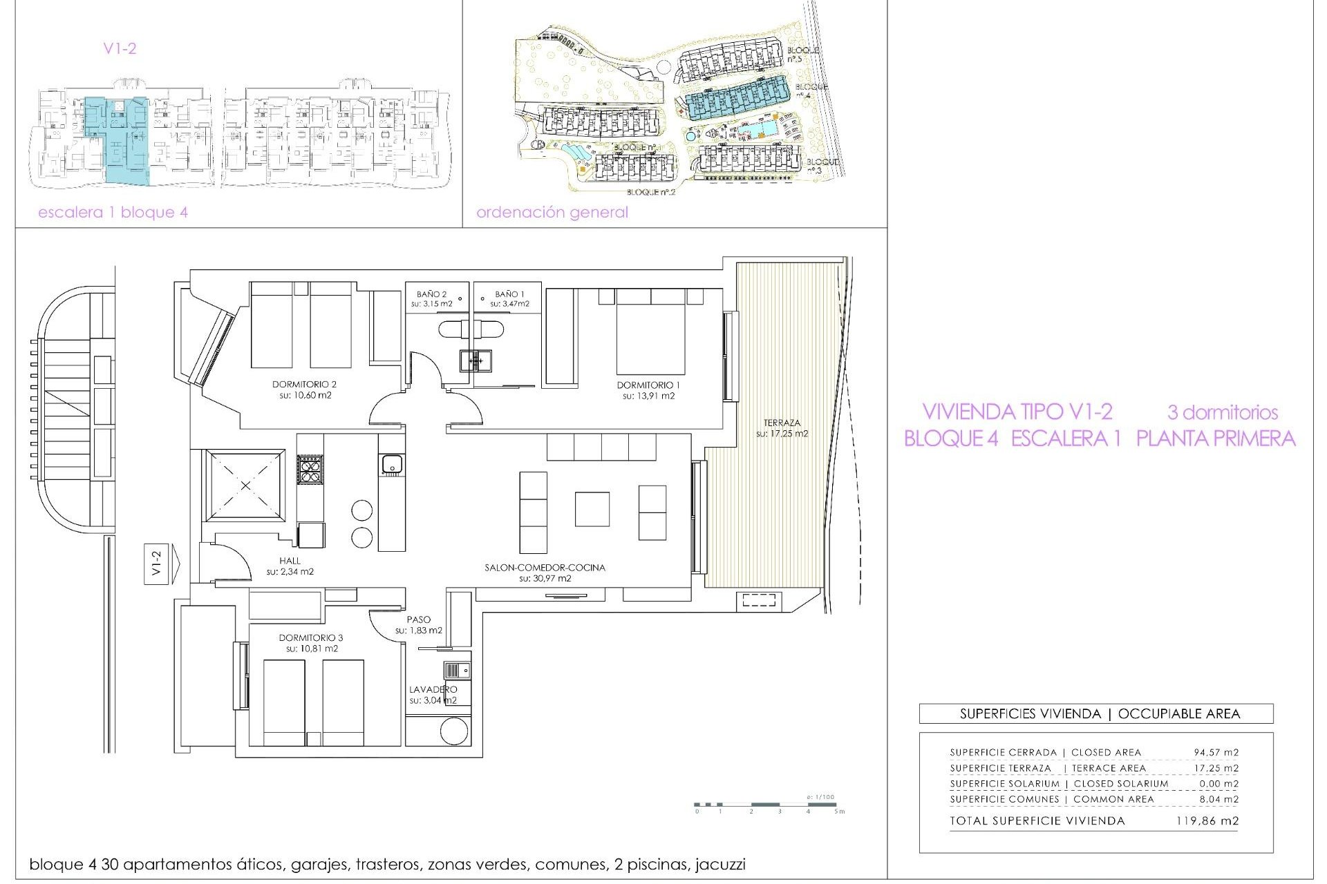
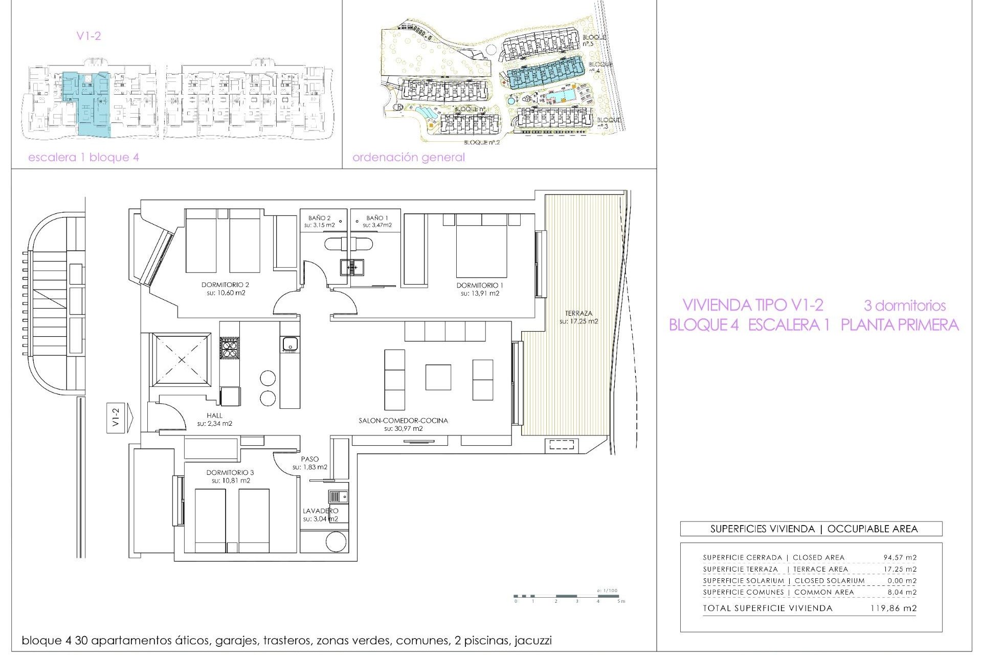
  • Bedrooms 3
  • Bathrooms 2
  • Pool Communal

Features

NEW BUILD RESIDENTIAL AT PLAYA FLAMENCA!!! Orihuela Costa. Costa Blanca South

Location

Data Controller: AJ Spain R.Estate & Promociones SL, Purpose of Processing: Management and control of the services offered through the Real Estate Services website, Sending information via newsletter and others, Legal Basis: By consent, Recipients: Data will not be shared, except for accounting purposes, Rights of Interested Parties: Access, rectify, and delete data, request its portability, object to processing, and request its limitation, Source of Data: The Data Subject, Additional Information: You can consult additional and detailed information on data protection Here.
WhatsApp Chat with us