Villa de lujo de nueva construcción con vistas al mar cerca de la playa de Granadella, en Jávea
Villa exclusiva en la prestigiosa zona de Granadella, en Jávea
Descubra una excepcional villa de lujo actualmente en construcción en la codiciada zona de Granadella, en Jávea, en el norte de la Costa Blanca. Situada en un entorno natural tranquilo, junto al parque forestal protegido y a poca distancia de la famosa Cala Granadella, esta propiedad ofrece una combinación única de privacidad, espectaculares vistas al mar y proximidad a una de las calas más bellas de España.
Jávea es famosa por su impresionante litoral, su encantador casco antiguo y su excelente clima durante todo el año. La ciudad ofrece un estilo de vida dinámico con restaurantes internacionales, puertos deportivos, campos de golf y una amplia gama de actividades al aire libre. Su mezcla de encanto mediterráneo y servicios modernos la convierte en uno de los destinos más deseados de la Costa Blanca, tanto para residencia permanente como para viviendas vacacionales de lujo.
Arquitectura moderna con amplias zonas de estar
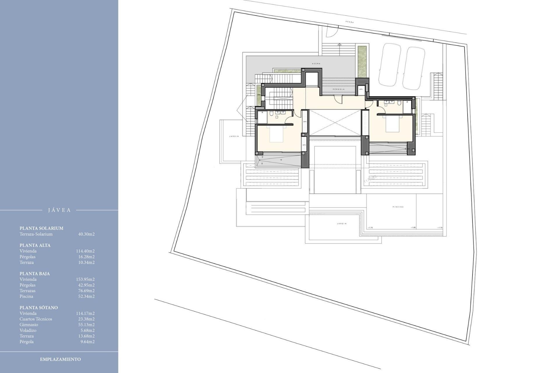
Esta elegante villa de diseño se encuentra en una generosa parcela de 925 m² y ofrece una impresionante superficie construida de aproximadamente 677 m² distribuida en tres niveles. La arquitectura contemporánea se integra a la perfección con el paisaje natural circundante, al tiempo que maximiza la luz natural y las vistas panorámicas.
La propiedad cuenta con cuatro amplios dormitorios, cinco baños y un aseo de invitados. Las amplias zonas de estar diáfanas conectan con fluidez con las terrazas exteriores, creando un entorno luminoso y confortable diseñado para la vida mediterránea moderna.
La villa también incluye un despacho privado, un gimnasio totalmente equipado, trasteros y aparcamiento cubierto para dos vehículos. Un ascensor conecta los diferentes niveles de la vivienda para ofrecer la máxima comodidad y accesibilidad.
Vistas panorámicas al mar y vida al aire libre
Una de las características más impresionantes de la propiedad es su espacio exterior. La villa ofrece aproximadamente 140 m² de terrazas abiertas que proporcionan unas vistas espectaculares del mar Mediterráneo y las montañas circundantes.
La piscina infinita tiene vistas a la costa y a la cercana playa de Granadella, creando un entorno único para relajarse y disfrutar de la belleza natural de la zona. El jardín ajardinado, con árboles y un sistema de riego automático, realza aún más la atmósfera tranquila de la propiedad.
Acabados de primera calidad y tecnología domótica
La villa está construida con materiales de alta calidad y las últimas tecnologías de construcción para garantizar el confort, la seguridad y la eficiencia energética.
Piscina infinita con vistas al mar
Ascensor que conecta todos los niveles
Cocina de diseño equipada con electrodomésticos NEFF
Calefacción por suelo radiante en toda la propiedad
Sistema de aire acondicionado por conductos con termostatos AIRZONE independientes
Sistema domótico NIESSEN Free Home para el control de la iluminación y las persianas
Persianas motorizadas en toda la villa
Videoportero y preinstalación para sistema de alarma
Jardín ajardinado con sistema de riego
Estas características proporcionan un entorno moderno, cómodo y seguro, diseñado para una vida de lujo.
Ubicación privilegiada cerca de playas y servicios
Cala Granadella 0,3 km
Playa del Arenal 7 km
La Sella Golf 18 km
Denia a 20 km
Aeropuerto de Alicante-Elche a 100 km
Aeropuerto de Valencia a 120 km
Asegúrese su villa de lujo en Jávea
Esta excepcional villa ofrece un diseño contemporáneo, impresionantes vistas al mar y una ubicación privilegiada cerca de una de las playas más bonitas de la Costa Blanca. Póngase en contacto con nosotros hoy mismo para recibir más información o concertar una visita privada y descubrir su futura vivienda de lujo en Jávea.
980