Роскошная вилла нового строительства с видом на море рядом с пляжем Гранаделья в Хавее
Эксклюзивная вилла в престижном районе Гранаделья в Хавее
Откройте для себя исключительную роскошную виллу, находящуюся в стадии строительства, в очень популярном районе Гранаделья в Хавее на северном побережье Коста-Бланка. Расположенная в тихом природном окружении рядом с охраняемым лесопарком и всего в нескольких минутах ходьбы от знаменитой бухты Кала-Гранаделла, эта недвижимость предлагает редкое сочетание уединения, потрясающих видов на море и близости к одной из самых красивых бухт Испании.
Хавеа славится своим потрясающим побережьем, очаровательным старым городом и прекрасным климатом круглый год. Город предлагает насыщенную жизнь с международными ресторанами, пристанями для яхт, полями для гольфа и широким выбором активного отдыха. Сочетание средиземноморского шарма и современных удобств делает его одним из самых привлекательных мест на Коста-Бланке как для постоянного проживания, так и для роскошного отдыха.
Современная архитектура с просторными жилыми помещениями
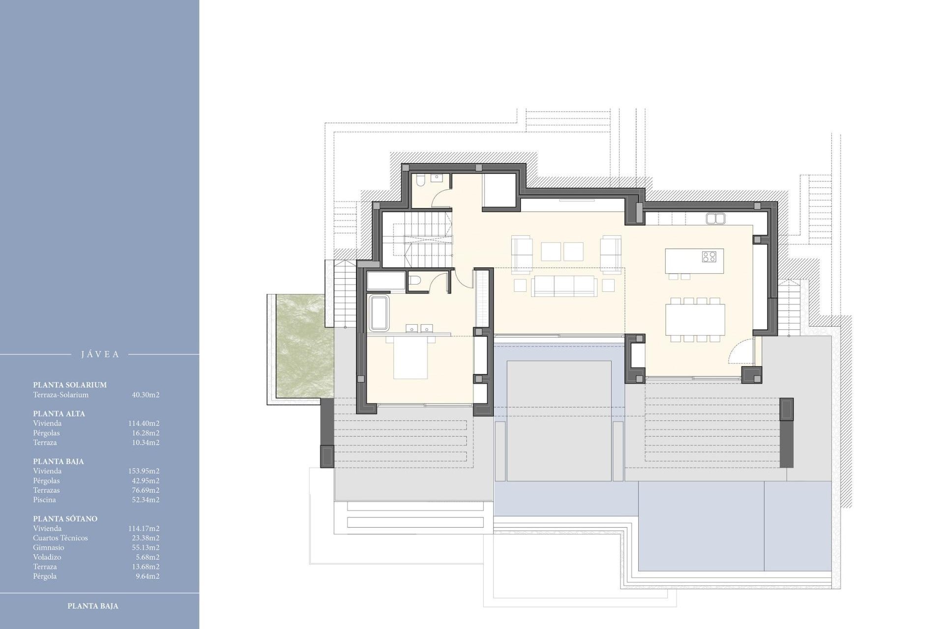
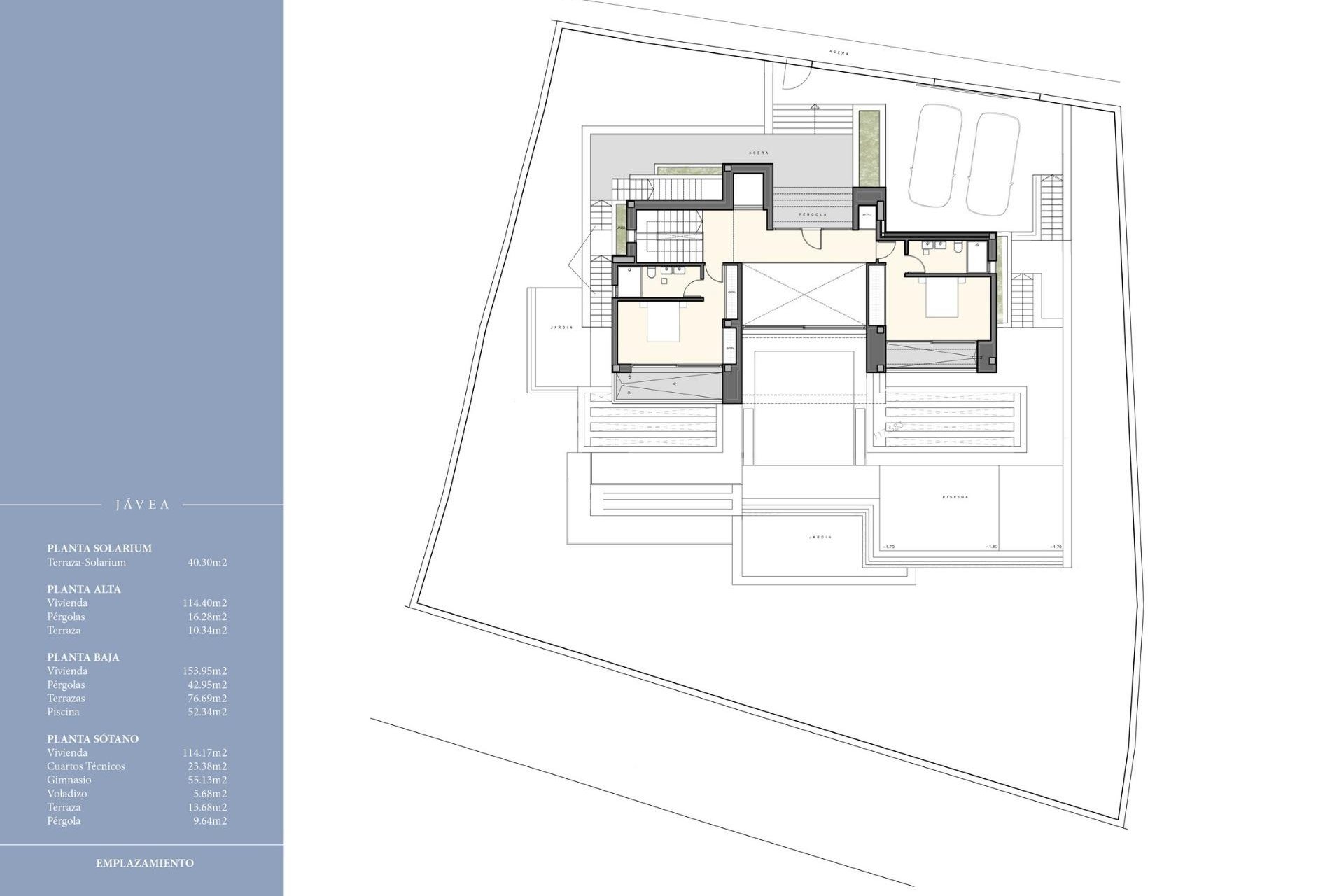
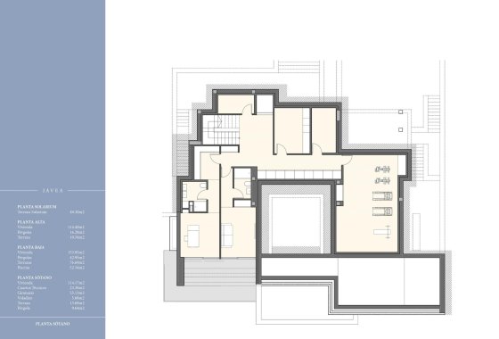
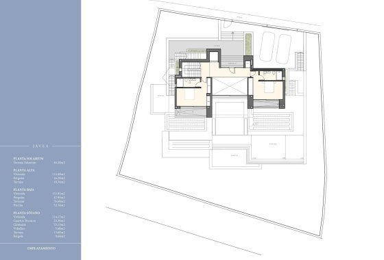
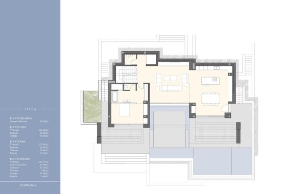
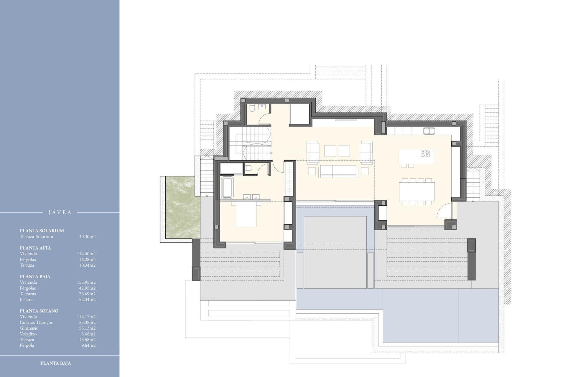
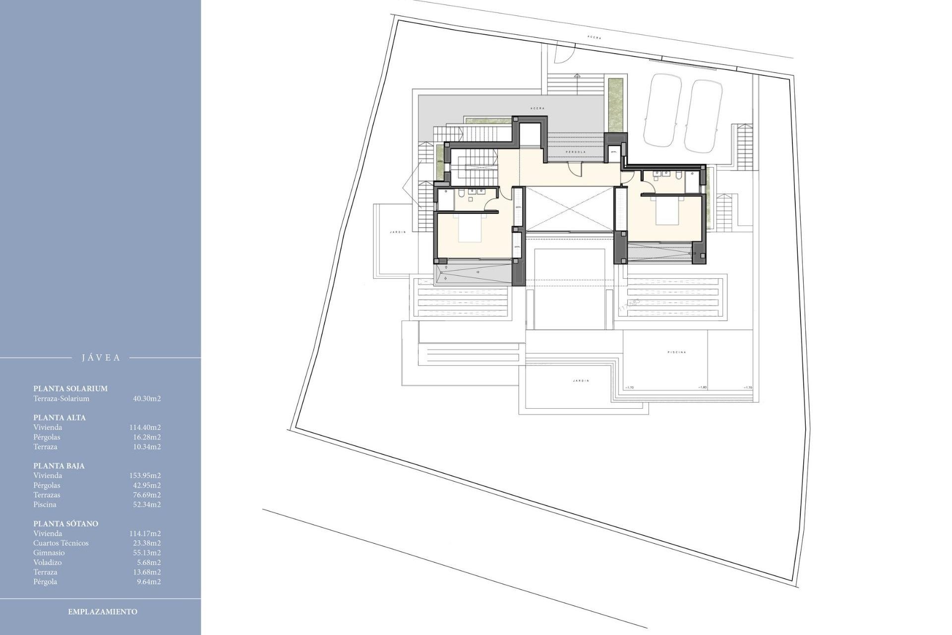
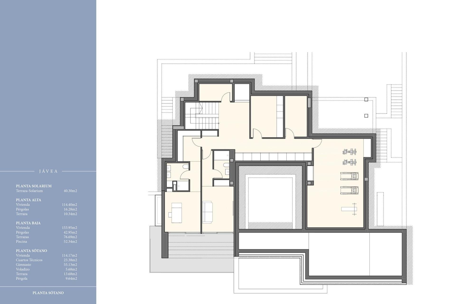
Эта элегантная дизайнерская вилла расположена на просторном участке площадью 925 м² и предлагает впечатляющую застроенную площадь около 677 м², распределенную на три уровня. Современная архитектура органично вписывается в окружающий природный ландшафт, обеспечивая при этом максимальное естественное освещение и панорамные виды.
В доме четыре просторные спальни, пять ванных комнат и один гостевой туалет. Большие жилые зоны открытой планировки плавно переходят в открытые террасы, создавая светлую и комфортную среду, идеально подходящую для современной средиземноморской жизни.
Вилла также включает в себя личный кабинет, полностью оборудованный тренажерный зал, кладовые и крытую парковку на два автомобиля. Лифт соединяет различные уровни дома, обеспечивая максимальное удобство и доступность.
Панорамный вид на море и жизнь на открытом воздухе
Одной из самых впечатляющих особенностей объекта является его открытое пространство. Вилла располагает открытыми террасами площадью около 140 м², с которых открываются потрясающие виды на Средиземное море и окружающие горы.
Пейзажный бассейн с эффектом бесконечности выходит на побережье и близлежащий пляж Гранаделла, создавая уникальную обстановку для отдыха и наслаждения природной красотой этого района. Ландшафтный сад с деревьями и системой автоматического полива еще больше усиливает умиротворенную атмосферу виллы.
Высококачественная отделка и технологии «умного дома»
Вилла построена с использованием высококачественных материалов и новейших строительных технологий, что обеспечивает комфорт, безопасность и энергоэффективность.
Плавательный бассейн-инфинити с видом на море
Лифт, соединяющий все уровни
Дизайнерская кухня, оборудованная техникой NEFF
Подогрев полов по всей вилле
Канальная система кондиционирования с независимыми термостатами AIRZONE
Система домашней автоматизации NIESSEN Free Home для управления освещением и жалюзи
Моторизованные жалюзи по всей вилле
Видеодомофон и подготовка к установке системы сигнализации
Ландшафтный сад с системой орошения
Эти особенности создают современную, комфортную и безопасную среду, предназначенную для роскошной жизни.
Превосходное расположение рядом с пляжами и инфраструктурой
Кала Гранаделла 0,3 км
Пляж Ареналь 7 км
Поле для гольфа La Sella 18 км
Дения — 20 км
Аэропорт Аликанте-Эльче — 100 км
Аэропорт Валенсии — 120 км
Приобретите свою роскошную виллу в Хавее
Эта исключительная вилла отличается современным дизайном, захватывающими видами на море и превосходным расположением рядом с одним из самых красивых пляжей на побережье Коста-Бланка. Свяжитесь с нами сегодня, чтобы получить дополнительную информацию или договориться о частном просмотре и открыть для себя свой будущий роскошный дом в Хавее.
980